3 комнаты, 142 м², Элитка, 8 этаж, Готовая ПСО (под самоотделку) 15 550 000 som
Add Listing 0 Log In
3 комнаты, 142 м², Элитка, 8 этаж, Готовая ПСО (под самоотделку) Bishkek - photo 1
About property
Rooms:
Total area: 142 m²
Kitchen area: 19.5 m²
Floor:
House floors: 13 
Bathrooms:
Balcony: Loggia 
About the house
Year of construction: 2025 
House type: Brick 
Facilities
Elevator
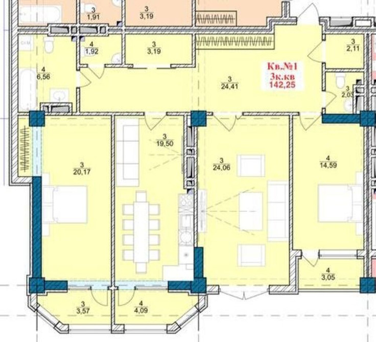
Просторная 3‑комнатная квартира площадью 142, 25 м² по плану. Рациональная планировка с большими изолированными комнатами и отдельными зонами для отдыха и хранения.
Основные параметры и планировка:
- Общая площадь: 142, 25 м² (указано на плане).
- Комнаты: три большие жилые комнаты.
- Гостиная-студия/зал — 24, 06 м².
- Жилая комната — 24, 41 м².
- Жилая комната — 20, 17 м².
- Кухня‑столовая — 19, 50 м² с удобной расстановкой мебели и техники.
- Спальня с площадью 14, 59 м².
- Санузлы: несколько помещений, включая ванную 6, 56 м² и дополнительные санузлы/узлы 2, 30 м², 2, 11 м², 1, 92 м².
- Гардеробные/кладовые: 3, 19 м² + 3, 19 м².
- Прихожая/холл — просторная зона с удобным распределением по комнатам.
- Балкон/эркерные зоны: лоджия/балкон 3, 57 м² и дополнительная светлая зона 4, 09 м²; еще один балкон 3, 05 м².
Особенности:
- Эркерные окна в двух помещениях, улучшают инсоляцию и визуально расширяют пространство.
- Несколько входов в общую зону, удачное зонирование: отдельные приватные комнаты и большая общая гостиная.
- Толстые наружные стены и несущие элементы по периметру, удобные для расстановки мебели.
- План предусматривает места под встроенные шкафы и гардеробные.
Квартира подходит для семьи, ценящей просторную гостиную, большую кухню‑столовую и наличие отдельных спален с гардеробными и несколькими санузлами.
Район Бишкека: 12 мкр
Серия: Элитка
Площадь кухни (м2): 19
Этаж: 8
Этажей в доме: 13
Тип предложения: Собственник
Тип сделки: Наличный расчет
Правоустанавливающие документы: Договор долевого участия
Конструкция стен: Кирпич
Комнат: 3
Ремонт: Готовая ПСО (под самоотделку)
Общая площадь: 142
Отопление: Центральное отопление
Дополнительно: Балкон/лоджия застеклен
Is the information provided in the listing accurate?

3 комнаты, 142 м², Элитка, 8 этаж, Готовая ПСО (под самоотделку)

12 мкр бишкек, Bishkek, Chui Region on the map
15 550 000 som
София
Was online yesterday 01:53
No Reviews
Contacts Message
March 2
ID:3482
Promote listing
Location
12 мкр бишкек, Bishkek, Chui Region
Similar Listings
Back to Top
My Group
Thematic classified platforms in Kyrgyzstan
Buy or sell a car
Find a master
Classifieds board
Find real estate